Търсене
  • 215,373€/421,233 лв.

Четеристаен в новоизграждаща се сграда

4-стаен
3
151

Описание

(ОФЕРТА-8979)
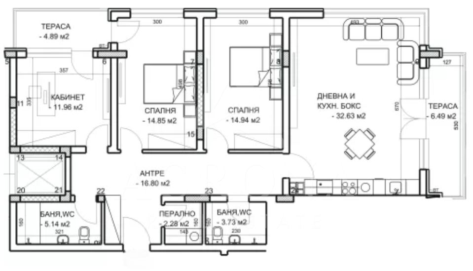
АКРОНА ИМОТИ има удоволствието да Ви представи просторен 4-стаен апартамент ново строителство в Пловдив, кв. Младежки хълм – отличен избор за семейство, което търси комфорт, функционалност и зелена среда наблизо. Жилището съчетава удобство, модерна архитектура и отлична локация, като предлага приятна градска гледка и бърз достъп до центъра. 🏙️🌳

- 🏢 Тип имот: 4-стаен, ново строителство
- 📍 Локация: Пловдив, Младежки хълм
- 📐 Обща площ: 150,61 кв.м
- 💶 Цена: 215 373 €
- 🗓️ Година на строеж: 2026 г.
- 🚪 Брой стаи: 4
- 🛏️ Брой спални: 3
- 🚿 Брой бани с тоалетни: 2
- 🌤️ Балкони/тераси: 2
- 🛗 Асансьор: да

- 🧭 Разпределение и усещане: функционален 4-стаен апартамент с просторна дневна зона и три отделени спални, идеални за семейство с деца или за комбиниране на спални и домашен офис. Два балкона добавят светлина и въздух, а двете бани с тоалетни осигуряват удобство в ежедневието.
- 🌟 Предимства: нова сграда с асансьор, съвременни общи части, отлична комуникация с ключови точки на града и приятна жилищна среда. Подходящ за дългосрочно обитаване или стабилна инвестиция с висока ликвидност.
Квартал Младежки хълм е един от най-зелените и предпочитани в Пловдив, с директен достъп до парка и отлични условия за спорт и отдих. 🌲🏃‍♂️  
В близост има училища, университети, медицински заведения, търговски обекти и удобен градски транспорт; центърът е на минути пеша. 🚌🛍️
За повече информация или оглед се обадете на посочените телефони! 
Оказваме пълно съдействие за банково кредитиране при най-добри условия и цялостна юридическа проверка на имотите, които предлагаме! Разгледайте пълният ни списък от оферти на www.acronaimoti.bg

Общ преглед

Статус:Продажби
Тип имот:4-стаен
Година на строеж:2026
Оферта №:8979
Цена кв.м.: 151
Етажи:3
Етажност:6
Вид строителство:Тухла

Локация

Характеристики

Ипотечен калкулатор

Подобни обяви