Търсене
  • 73,100€/142,971 лв.

Двустаен апартамент кв. Беломорски

2-стаен
1
67

Описание

(Оферта 8733)
БЕЗ КОМИСИОННА!
НОВО ПРЕДЛОЖЕНИЕ НА ПАЗАРА!
ИНВЕСТИЦИОННА ВЪЗМОЖНОСТ!
РАЗСРОЧЕНО ПЛАЩАНЕ!

АКРОНА Имоти има удоволствието да ви представи новоизграждащи се нискоетажни жилищни сгради в кв. Беломорски.
Защо да изберете този имот:
Нискоетажна сграда, малък брой апартаменти.
Добре осветени и просторни стаи.
Висок клас строителство.
Доказан строител с дългогодишен опит.
Възможност за купуване с банка.
Параметри на имота:
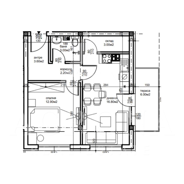
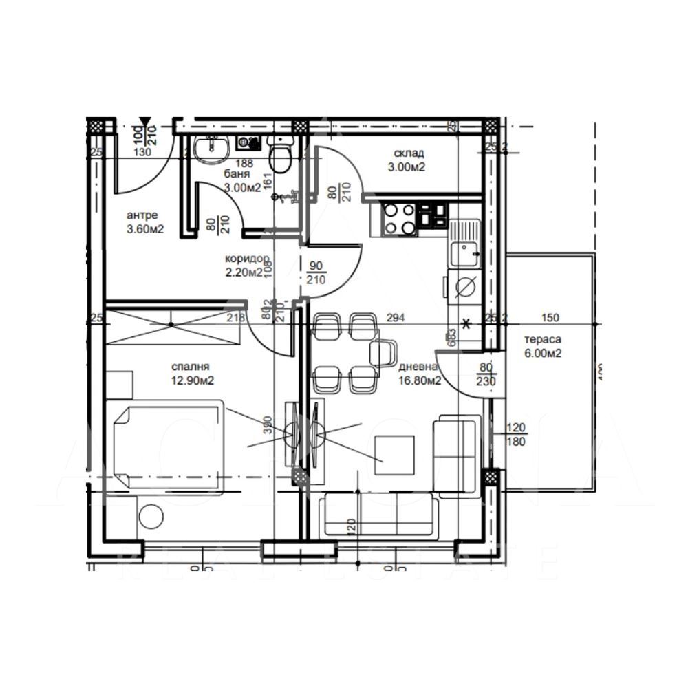
Разпределение - Светла функционална всекидневна с кухненски бокс, самостоятелна спалня, баня с тоалетна, килер, тераса, входно антре.
Площ - 67 кв.м.
Изложение - Изток
Етаж - 3/4

За повече информация или оглед се обадете на посочените телефони!
Работейки с нас, Вие получавате банково кредитиране при преференциални условия и цялостна юридическа проверка на имотите, които предлагаме. Разгледайте пълния ни списък от оферти на www.acrona.bg.

Общ преглед

Статус:Продажби
Тип имот:2-стаен
Година на строеж:2027
Оферта №:8733
Цена кв.м.: 67
Етажи:3
Етажност:4
Вид строителство:Тухла

Локация

Характеристики

Ипотечен калкулатор

Подобни обяви