Търсене
  • 262,800€/513,992 лв.

Еднофамилна къща кв. Остромила

Къща
3
220

Описание

(Оферта 8464)
БЕЗ КОМИСИОННА!
НОВО ПРЕДЛОЖЕНИЕ НА ПАЗАРА!

АКРОНА Имоти има удоволствието да ви представи нов жилищен комплекс от къщи в кв. Остромила!
ЗАЩО ДА ИЗБЕРЕТЕ ТОЗИ ИМОТ:
-Спокоен район, с бързоразвиваща се инфраструктура, който предлага все повече удобства на своите жители!
-Сигурен инвеститор, изпълняващ проектите си с висококачествени материали!
-Удобни и гъвкави схеми на плащане - 20/80%!
-Възможност за закупуване с кредит!
-Акт 16 - до края на 2026г.
ПАРАМЕТРИ НА ИМОТА:
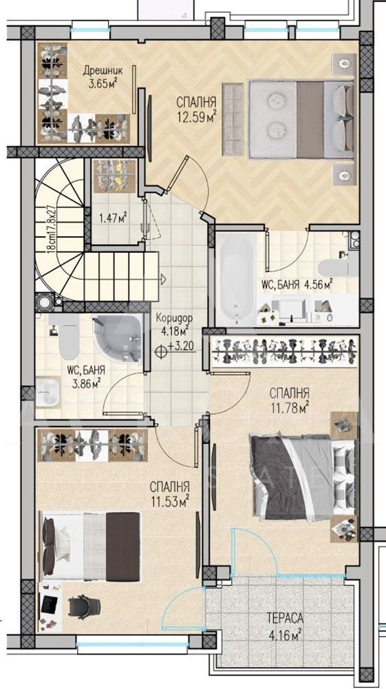
-РЗП 170 кв.м.
-Двор 30 кв.м.
-Къщата разполага с просторна и светла дневна зона, която предлага естествена светлина и уютна атмосфера за вашето семейство и гости.
-Трите спални са проектирани с внимание към детайлите, осигурявайки комфорт и уединение, като родителската спалня има персонална баня с тоалетна и дрешник, а другите две спални - обща тераса.
-Двете бани и допълнителната тоалетна гарантират удобство на всеки член от семейството.

За повече информация или оглед се обадете на посочените телефони!
Работейки с нас, Вие получавате банково кредитиране при преференциални условия и цялостна юридическа проверка на имотите, които предлагаме.
Разгледайте пълния ни списък от оферти на www.acronaimoti.bg

Общ преглед

Статус:Продажби
Тип имот:Къща
Година на строеж:2026
Оферта №:8464
Цена кв.м.: 220
Етажност:2
Вид строителство:Тухла

Локация

Характеристики

Ипотечен калкулатор

Подобни обяви