Търсене
  • 300,000€/586,749 лв.

Самостоятелна къща в Беломорски

Къща
4
210

Описание

(ОФЕРТА-9145)
АКРОНА ИМОТИ има удоволствието да Ви предложи самостоятелна къща ново строителство в Пловдив, кв. Беломорски – съвременен дом с функционално разпределение, идеален за семейство, което цени комфорта и спокойствието. Просторни помещения, логична връзка между зоните и достатъчно място за съхранение.  

- 📍 Локация: Пловдив, Беломорски  
- 🏠 Вид имот: Къща (ново строителство, 2026 г.)  
- 📐 Площ: 210 кв.м  
- 💶 Цена: 300 000 €  
- 🛋️ Стаи: 5  
- 🛏️ Спални: 4  
- 🚿 Бани с тоалетни: 3  
- 🌇 Балкони: 1 бр.  
- 🧭 Етажност: 2 нива, вътрешно стълбище  

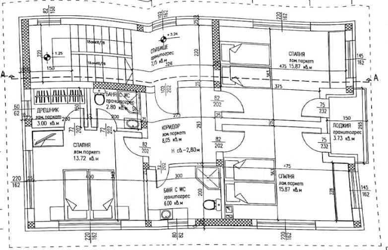
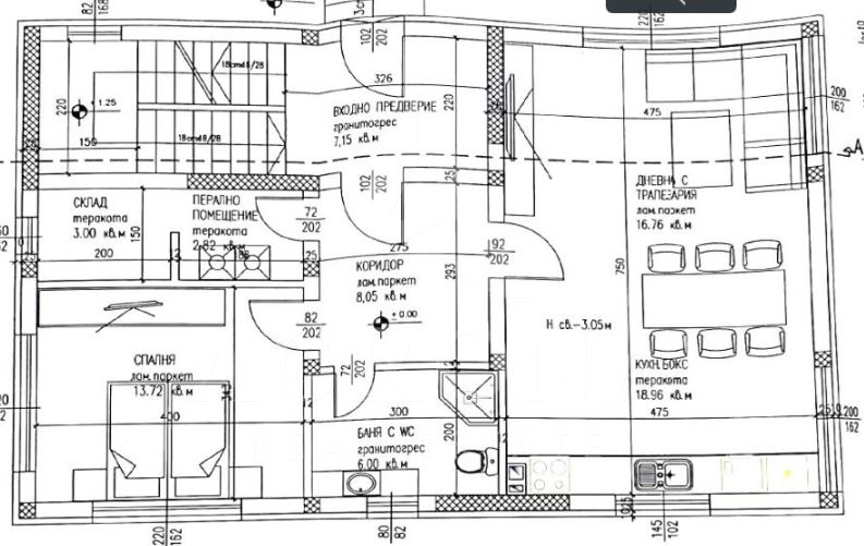
Разпределение:  
- Първи етаж:  
 - 🚪 Входно антре – 8,05 кв.м  
 - 🛋️ Просторна дневна с кухненски бокс и трапезария – 35,72 кв.м  
 - 🛏️ Една спалня – 13,72 кв.м  
 - 🚿 Баня с тоалетна – 6 кв.м  
 - 🧺 Килер с перално помещение – 6 кв.м  
 - 🔧 Котелно помещение под стълбите – около 5 кв.м  
 - ↗️ Вътрешно стълбище към втори етаж  

- Втори етаж:  
 - 🛏️ Три спални – 13,72 кв.м, 15,87 кв.м и 15,87 кв.м  
 - 👗 Дрешник – 3 кв.м към родителската спалня  
 - 🚿 Самостоятелна баня с тоалетна – 2,8 кв.м  към родителската спалня  
 - 🧭 Коридор – 8,05 кв.м  
 - 🚿 Втора баня с тоалетна – 6 кв.м  
 - 🌤️ Балкон – 1 бр.  

Предимства:  
- 🧩 Много удобно и ясно разпределение по етажи  
- 🧼 Отделна пералня/килер и техническо помещение  
- 👪 Четири реални спални и три бани – комфорт за голямо семейство  

За квартала:  
- 🏞️ Беломорски е спокоен, с ниско застрояване и приятна жилищна среда, с бърз достъп до централната част на града.  
За повече информация или оглед се обадете на посочените телефони! 
Оказваме пълно съдействие за банково кредитиране при най-добри условия и цялостна юридическа проверка на имотите, които предлагаме! Разгледайте пълният ни списък от оферти на www.acronaimoti.bg

Общ преглед

Статус:Продажби
Тип имот:Къща
Година на строеж:2026
Оферта №:9145
Цена кв.м.: 210
Етажност:2
Вид строителство:Тухла

Локация

Характеристики

Ипотечен калкулатор

Подобни обяви