- 161,300€/315,475 лв.
Тристаен апартамент с Акт 14 кв. Тракия
Описание
(Оферта 8846)
БЕЗ КОМИСИОННА!!!
НОВ ЖИЛИЩЕН КОМПЛЕКС!!!
АКРОНА Имоти има удоволствието да ви представи нов жилищен комплекс до парк Лаута в кв. Тракия!
ЗАЩО ДА ИЗБЕРЕТЕ ТОВА ПРЕДЛОЖЕНИЕ:
-Доказан инвеститор без риск, с множество изградени жилищни комплекси!
-Разнообразие от разпределения, етажност, изложения!
-Наличие на търговски обекти, офиси, паркоместа и гаражи!
-Удобна схема на плащане! Възможност за закупуване с кредит!
ПАРАМЕТРИ НА ИМОТА:
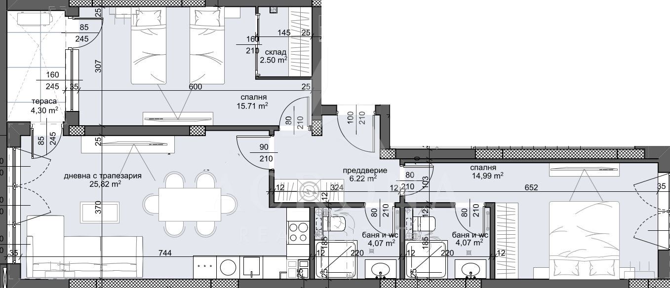
-Разпределение - просторна всекидневна с кухненски бокс, две самостоятелни спални, два санитарни възела, тераса, килер, входно антре.
-Площ - 109 кв.м.
-Удобна локация с бърза връзка към центъра на града и различни търговски обекти в близост!
За повече информация или оглед се обадете на посочените телефони!
Работейки с нас, Вие получавате банково кредитиране при преференциални условия и цялостна юридическа проверка на имотите, които предлагаме.
Разгледайте пълния ни списък от оферти на www.acronaimoti.bg
Общ преглед
Локация
Характеристики
Ипотечен калкулатор
-
Първоначална вноска
-
Размер на заема
-
Месечно ипотечно плащане

