Търсене
  • 125,000€/244,479 лв.

Тристаен на Южен

3-стаен
2
100

Описание

(ОФЕРТА-9103)
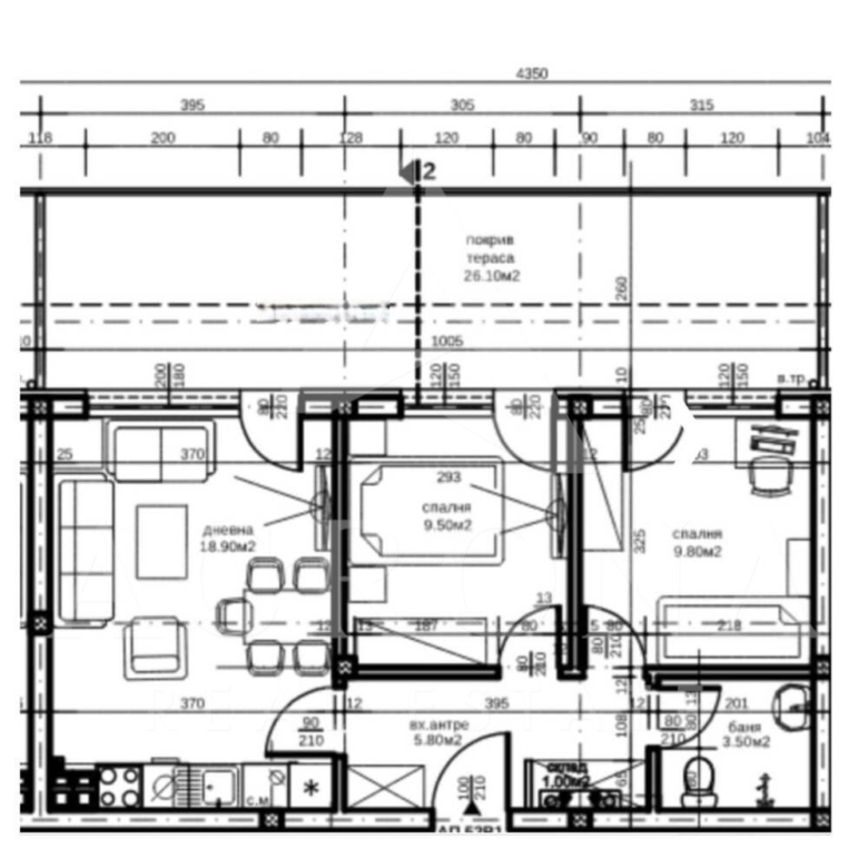
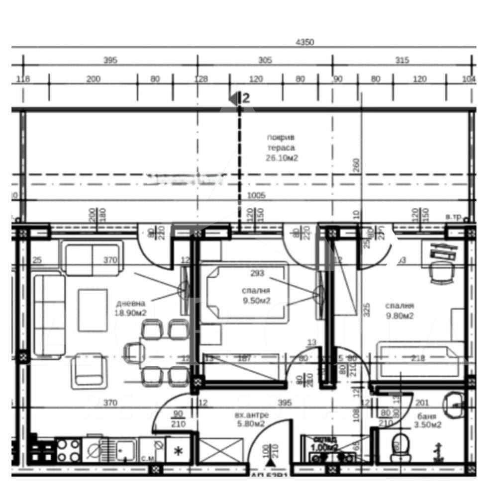
АКРОНА ИМОТИ Ви предлага 3-стаен апартамент ново строителство в Пловдив, кв. Южен 🏙️🏡

• 📍 Локация: гр. Пловдив, кв. Южен  
• 🏢 Вид имот: 3-стаен апартамент  
• 📅 Дата на построяване: 2026 г. (ново строителство)  
• 📐 Общa площ: 100 кв.м  
• 🛏️ Спални: 2  
• 🛋️ Общо стаи: 3  
• 🚿 Баня с тоалетна: 1  
• 🌿 Балкони: 1  
• 🛗 Асансьор: да  
• 💶 Цена: 125 000 €  

• ✨ Имотът предлага комфортно и практично разпределение – дневна зона с място за кухненски бокс и трапезария, две самостоятелни спални, функционално входно антре и излаз към удобен балкон.  
• 🧩 Подходящ за семейства и за инвестиция – оптимална площ от 100 кв.м, която осигурява свобода на обитаване и възможност за индивидуално оформление на интериора.  
• 🌞 Съвременно строителство осигуряващо спокойна и поддържана жилищна среда.  
• 🛗 Сградата е с асансьор – лесен достъп и удобство за ежедневието.  
• 🅿️ В района има възможности за паркиране и разнообразни услуги (магазини, аптеки, заведения) – отлична ежедневна инфраструктура.  

За квартала:  
• 🏞️ Кв. Южен е динамично развиващ се район с бърз достъп до центъра, богат избор от магазини, училища и детски градини, както и удобен градски транспорт.  
За повече информация или оглед се обадете на посочените телефони! 
Оказваме пълно съдействие за банково кредитиране при най-добри условия и цялостна юридическа проверка на имотите, които предлагаме! Разгледайте пълният ни списък от оферти на www.acronaimoti.bg

Общ преглед

Статус:Продажби
Тип имот:3-стаен
Година на строеж:2026
Оферта №:9103
Цена кв.м.: 100
Етажи:6
Етажност:6
Вид строителство:Тухла

Локация

Характеристики

Ипотечен калкулатор

Подобни обяви